Rif. SV15 - Tuscany - pietrasanta near to the centre villa with garden and tavern for sale - ref. sv15

  • Last Minute

Description

Exclusive Sale in Pietrasanta: Semi-Detached Villa with Garden and Tavern

 

Discover your new retreat just steps from the center of Pietrasanta!

We present exclusively a stunning "B" portion of a semi-detached villa, surrounded by a spacious garden and private parking.

 

This recently built villa features a modern and functional design, developed over two main levels, in addition to a large tavern.

 

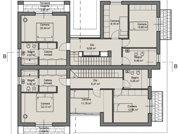
Composition:

Ground Floor: A spacious open-plan living area with a lounge and dining room that opens onto a terrace. The eat-in kitchen provides direct access to the garden, complemented by a pantry and a bathroom with a shower.

First Floor: The master bedroom boasts an exclusive bathroom and a walk-in closet, along with two medium-sized bedrooms and an additional bathroom with a shower.

Basement: A large tavern of 105 sqm, perfect for leisure time, equipped with a laundry room and a technical room with independent access.

 

With a total commercial area of 280.96 sqm and 313 sqm of garden, this property is ideal for those seeking space and comfort.

 

Energy Class "B"Excellent efficiency values: ACE 39.756 kWh/mqa, EPi 12.754 kWh/mqa, EPe 34.285 kWh/mq*a.

 

Contact La Sovrana Real Estate Agency for more information and to schedule a visit!   Tel. +39.058422988  - www.lasovrana.net   -  info@lasovrana.net  

www.caseintoscana.net - www.domvtoscane.ru

 

Don't miss this unique opportunity!

I Agree to the processing of my personal data as specified in the Privacy Notice on the page www.caseintoscana.net/privacypolicy.


I agree to receive periodic documentation on the rates and offers made to my home or e-mail address.

Send Message

Price

€ 840.000

Calculate the payment

Features

Type:

Villa

Contract:

Buying And Selling

Locality:

Pietrasanta

Position:

Surface (mq):

280

Rooms:

10

Bedrooms:

3

Beds:

6

Bathrooms:

3

Kitchen:

Habitable

Heating:

Independent

Garage:

Parking space

Garden:

Private

Air Conditioning:

Yes

Dist. from sea (m):

3500

Dist. from center (m):

400

Cl. Energetic:

A2

EPE:

34.28 kWh/m2

Inquire about this property

* Name and Surname:

* E-mail:

Phone:

Subject:

Message:
Antispam Check*: What is the number between 8 and 10?

I Agree to the processing of my personal data as specified in the Privacy Notice on the page www.caseintoscana.net/privacypolicy.


I agree to receive periodic documentation on the rates and offers made to my home or e-mail address.

Similar Properties